The Top Loading Arm with Two Arms is a specialized device designed for efficient and safe liquid transfer from the top of road or rail tankers.


| ITEM | SPECIFICATION |
|---|---|
| Nominal Diameter | DN25 ~ DN200 (1"-8") |
| Design Pressure | -0.06MPa ~ 5.0MPa |
| Design Temp. | -196ºC ~ 250ºC |
| Pipeline Material | CS, SS, Aluminum Alloy, Steel lined with PTFE, etc. |
| Operating Method | Manual, Pneumatic or Hydraulic |
| Balance Mode | Spring cylinder or counterweight |
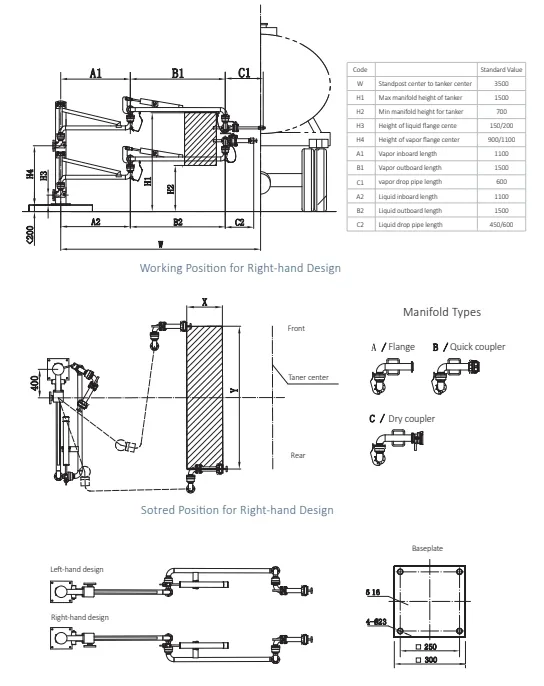
Structural Diagrams:


We are a leading manufacturer for loading arms, jetty, and petrochemical equipment. We specialize in the design, manufacturing, and supply of land loading arms, marine loading arms, floating suction units, loading skids, gangways, quick release hooks, folding stairs, and standard filing platforms.
Our facilities include a factory area of more than 12 acres, R&D buildings, and workshops equipped with over 120 sets of advanced manufacturing and testing equipment. We hold production licenses for special equipment, pressure pipeline components, and ISO9001/ISO14001/ISO45001 certifications.
We have established extensive cooperation with major global energy and chemical corporations, exporting products to Germany, UK, Belgium, Singapore, South Korea, India, Vietnam, and many other countries. We persist in supplying cost-effective systematic solutions through continuous R&D and innovation.

