The Top Loading Arm with Two Arms is a specialized device designed for efficient and safe liquid transfer from the top of road or rail tankers.
Equipped with multiple swivel joints, reaching different positions flexibly. Custom lengths available to meet site requirements.
Optional emergency shut-off, overfill protection, and vapor recovery systems to minimize risks and emissions.
Engineered for rapid liquid loading, essential for high-turnaround production targets.
Advanced spring or counterweight mechanisms ensure stability and smooth, precise movement.
| ITEM | SPECIFICATION |
|---|---|
| Nominal Diameter | DN25 ~ DN200 (1"-8") |
| Design Pressure | -0.06MPa ~ 5.0MPa |
| Design Temp. | -196ºC ~ 250ºC |
| Pipeline Material | CS, SS, Aluminum Alloy, PTFE Lined, etc. |
| Operating Method | Manual, Pneumatic or Hydraulic |
| Balance Mode | Spring cylinder or counterweight |
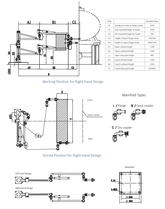
Top Loading Arm Envelope
Bottom Loading Arm Envelope
Transfer of crude oil, refined petroleum, and LNG for tankers and railcars.
Safe handling of corrosive, hazardous, or high-viscosity chemicals.
Hygienic transfer of milk, edible oils, syrups, and juices.
Contamination-free transfer of solvents and grade liquids.


