20 40 Foot Double Lane Container Tilter Container Tipping Machine Container Loading and Unloading with Remote Control System for Loading and Unloading

Customization: Available
After-sales Service: Yes
Operation Form: Cabin

Product Description

Basic Info.
Model NO.
20/40FEET 10TON
Warranty
2 Years
Certification
GS, RoHS, CE, ISO9001
Product Name
Hot Sale Hydraulic Marine Crane Offshore Platform
Color
Customize
Protection Device
Limit Switch, Buffer, etc
Transport Packages
by Sea Standard Package
Working Class
A6~A8
Painting Color
Customized
OEM
Accept
Dead Weight
8t~12t
Specification
20/40feet
HS Code
84269900
Production Capacity
500
Product Description

The 20feet/40feet container tilter

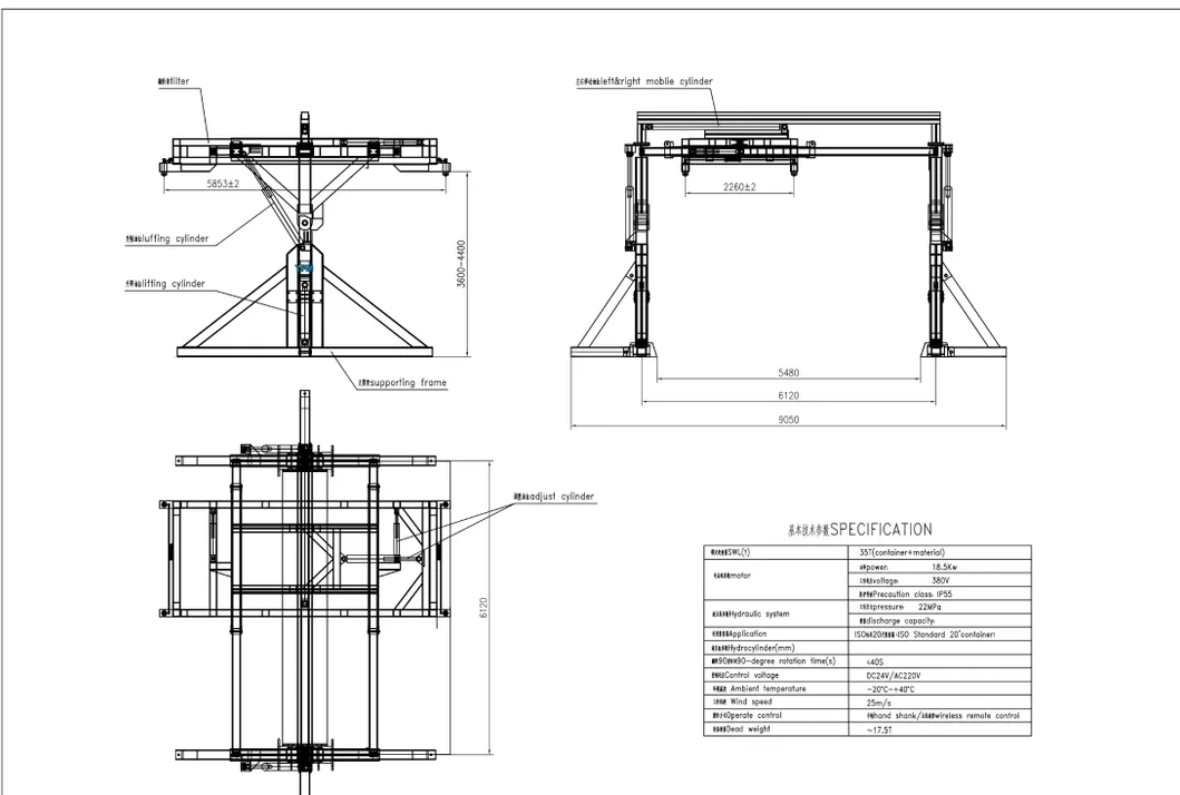
The container tilter is built around a fully welded steel chassis, primarily from 305 x 305 x 137 kg beams. The lifting arms are fabricated using 305 x 305 x 137 Kg beams, plated with a 15mm steel plate to give an ultra-high strength lifting frame.

The pivot point is further reinforced with 15 mm plates, which are bushed to accept the 50mm main pins. Actuated by 4 No 100 x 60 mm hydraulic cylinders from -10 degrees up to 90 degrees, fitted with fail-safe check valves.

Hydraulically activated arms act as supports for the container doors as well as closing them before tilting the container from upright to a horizontal position. With the doors held firmly, they can be latched safely from ground level.

Container Tilter
Application
  • Significantly speed up the container unloading process.
  • Reduce labor costs by using a single operator with a remote control.
  • Eliminate contamination risks by unloading directly into the silo.
  • Remove reliance on rare and expensive tilting trailers.
  • Increase operator safety.
  • Control unloading speed by adjusting the tilt angle.
Application view
Product Parameters
Parameters
Detailed Photos
Detail Photo
Our Advantages
  • High Productivity: Increase productivity while improving safety and eliminating contamination risks.
  • Remote Operation: Hands-free remote control enables the process to be controlled safely by a single operator.
  • Flexible Storage: Full containers can be stored in the unloader and emptied when desired.
  • Customization: Range of standard accessories or customized options to suit different heights and materials.
Certifications & Client Visits
Facility
Certification Client Visit 1 Client Visit 2
FAQ
What container sizes can this machine handle?
The unit is designed to handle both 20-foot and 40-foot shipping containers for bulk material unloading.
How is the container tilter powered?
The unit is completely self-contained and driven by a 3-cylinder, 20 HP diesel engine.
Is it possible to weigh the materials during unloading?
Yes, the unit is mounted on 4 high-capacity compression load cells (20,000 kg each), with weight displayed on an LCD digital screen.
What safety features are included for the hydraulic system?
The hydraulic system features fail-safe check valves and Pressure Relief Valve (PRV) protection for maximum safety during operation.
Can the machine be operated remotely?
Yes, it comes with a radio-controlled pendant remote unit, allowing the operator to stand in the safest and most advantageous position.
What is the maximum tilting angle?
The hydraulic cylinders can actuate the frame from -10 degrees (to match trailer heights) up to a full 90-degree vertical position.
FAQ footer

Related Products