1 / 5
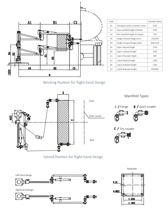
The Top Loading Arm with Two Arms is a specialized device designed for efficient and safe liquid transfer from the top of road or rail tankers.


| ITEM | SPECIFICATION |
|---|---|
| Nominal Diameter | DN25 ~ DN200 (1"-8") |
| Design Pressure | -0.06MPa ~ 5.0MPa |
| Design Temp. | -196ºC ~ 250ºC |
| Pipeline Material | CS, SS, Aluminum Alloy, Steel lined with PTFE, etc. |
| Operating Method | Manual, Pneumatic or Hydraulic |
| Balance Mode | Spring cylinder or counterweight |


Specializing in the design, manufacturing, and supply of land loading arms, marine loading arms, floating suction units, loading skids, and folding stairs. Our production facility includes advanced manufacturing and testing equipment with multiple invention patents and ISO certifications.


