High Safety Boom Crane Industrial Machinery Top Land Suspended Articulated Loading and Unloading Lifting Equipment Arm with Single Arms

Customization: Available
After-sales Service: Lifetime Maintenance Services
Warranty: 12 Months (or as Per Customer Requirements)

Product Description

Basic Information
Condition
New
Customized
Customized
Certification
ISO9001, QS, TUV
Type
Single-Arm, Double-Arm
Storage Objects
Solid, Liquid, Gas
Pipeline Material
CS, Ss, Aluminum Alloy, Steel Lined with PTFE, etc
Applicable Tank
Applicable for Top Tankers.
Balance Mode
Spring Cylinder or Counterweight
Design Temp.
- 196 ~ + 250°c
Nominal Diameter
DN25~DN200
Operating Method
Manual, Pneumatic or Hydrauilc
Design Pressure
-0.06~5.0MPa
Production Capacity
4000 Sets/Year
Packaging & Delivery
Package Size
260.00cm * 70.00cm * 240.00cm
Gross Weight
300.000kg
Product Description
Loading Equipment

The Top Loading Arm with Two Arms is a specialized device designed for efficient and safe liquid transfer from the top of road or rail tankers.

Top Loading Arm Details

Product Features:

  • Flexibility and Maneuverability: Equipped with multiple swivel joints, allowing it to reach different loading positions flexibly. Custom lengths available.
  • Safety Features: Optional emergency shut-off system, overfill protection, and vapor recovery systems to minimize risk.
  • High Flow Design: Engineered for rapid and efficient liquid loading to meet production targets.
  • Multiple Balance Systems: Advanced spring or counterweight mechanisms ensure stability and smooth movement.
  • Antistatic Device: Integrated systems eliminate static electricity generated by liquid movement.
Loading Arm Operation
Product Parameters
ITEM SPECIFICATION
Nominal DiameterDN25 ~ DN200 (1"-8")
Design Pressure-0.06MPa ~ 5.0MPa
Design Temp.-196ºC ~ 250ºC
Pipeline MaterialCS, SS, Aluminum Alloy, Steel lined with PTFE, etc.
Operating MethodManual, Pneumatic or Hydrauilc
Balance ModeSpring cylinder or counterweight

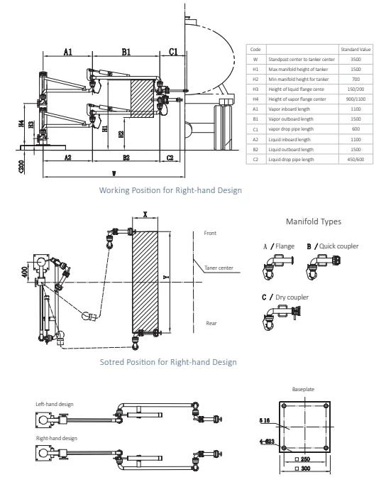
Structural Diagrams:

Top Loading Arm Envelope

Top Loading Arm Envelope

Bottom Loading Arm Envelope

Bottom Loading Arm Envelope
Application Areas
Application Areas

Land loading arms are essential for safe transfer across various industries:

Oil and Gas: Crude oil, refined products, and LNG transfer at refineries and terminals.
Chemical: Handling corrosive, hazardous, or high-viscosity chemicals with compatible materials.
Food & Beverage: Hygienic designs for milk, edible oils, syrups, and juices.
Pharmaceutical: Safe handling for pharmaceutical-grade liquids and solvents.
Environmental: Recovery of volatile organic compounds (VOCs) and waste liquids.
Water Treatment: Transfer of chlorine, sulfuric acid, and treatment agents.
Our Customized Services
Customized Services
Company Profile

A leading manufacturer for loading arms, jetty and petrochemical equipment. We specialize in the design, manufacturing and supply of land loading arm, marine loading arm, floating suction unit, loading skids, gangways, quick release hook, folding stairs, and standard filing platforms.

With a factory area of more than 12 acres and workshop area of 20,000 m², the facility includes more than 120 sets of advanced manufacturing and testing equipment. We hold numerous invention patents and are authorized as a National High-Tech Enterprise with ISO9001/ISO14001/ISO45001 certifications.

Factory Overview
Detailed Photos
Product Detail 1
Product Detail 2
Certifications
Quality Certifications
Frequently Asked Questions
What is your production lead time?
It depends on the specific product, but generally, delivery can be made within 30-60 days.
What payment terms do you offer?
We typically offer payment terms of 30% deposit and 70% before shipment, but this can be negotiated based on the order details.
Can you apply the customer's brand to the product?
Certainly, we can provide OEM services to meet your branding requirements.
How do you ensure the quality of your products?
We have a strict quality control process in place, including inspections at every stage of production, to ensure the highest quality standards.
Can you provide documentation and certifications for your products?
Yes, we can provide all necessary documentation including material certificates, inspection reports, and compliance standards.
How long is your warranty?
12 months from commissioning or 18 months from delivery, whichever comes first.

Related Products