High Safety Hydraulic Crane Industrial Machinery Top Land Suspended Articulated Loading and Unloading Equipment Arm with Single Arms

Customization: Available
After-sales Service: Lifetime Maintenance Services
Warranty: 12 Months (or as Per Customer Requirements)

Product Description

📋

Product Overview

Condition:New
Customized:Available
Certification:ISO9001, QS, TUV
Type:Single-Arm, Double-Arm
Storage Objects:Solid, Liquid, Gas
Pipeline Material:CS, SS, Aluminum Alloy, PTFE Lined Steel
Design Temp.:-196 ~ +250°C
Design Pressure:-0.06 ~ 5.0MPa
Nominal Diameter:DN25 ~ DN200
Balance Mode:Spring Cylinder or Counterweight
🏗️

Product Description

Top Loading Arm

The Top Loading Arm with Two Arms is a specialized device designed for efficient and safe liquid transfer from the top of road or rail tankers.

Loading Arm Detail
Loading Operation
Flexibility and Maneuverability Equipped with multiple swivel joints, allowing it to reach different loading positions flexibly. Custom lengths are available to meet specific site requirements.
Safety Features Optional emergency shut-off systems, overfill protection, and vapor recovery systems to minimize leaks and environmental impact.
High Flow Design Engineered for rapid and efficient liquid loading, essential for industries requiring quick turnaround times.
Antistatic Device Integrated systems effectively eliminate static electricity generated by liquid movement, enhancing operational safety.
📊

Technical Parameters

ITEM SPECIFICATION
Nominal DiameterDN25 ~ DN200 (1"-8")
Design Pressure-0.06MPa ~ 5.0MPa
Design Temp.-196ºC ~ 250ºC
Pipeline MaterialCS, SS, Aluminum Alloy, PTFE Lined, etc.
Operating MethodManual, Pneumatic or Hydraulic
Balance ModeSpring cylinder or counterweight

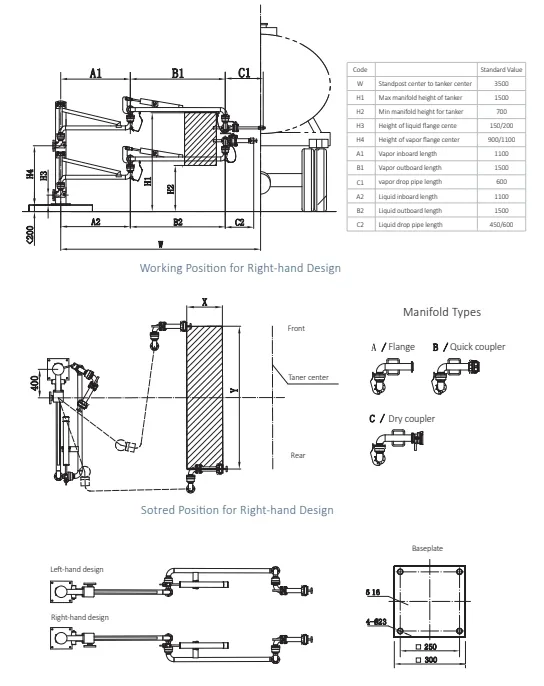
Operating Envelope Diagrams

Top Loading Envelope
Bottom Loading Envelope
🌍

Application Areas

Applications

Our loading arms are widely utilized across various sectors for safe fluid transfer:

  • Oil & Gas: Transfer of crude oil, refined products, and LNG.
  • Chemical: Handling corrosive, hazardous, or high-viscosity chemicals.
  • Food & Beverage: Hygienic transfer of milk, edible oils, and juices.
  • Pharmaceuticals: Contamination-free transfer of solvents and liquids.
  • Water Treatment: Transfer of treatment agents like chlorine and acids.
🏢

Company Profile & Capability

We are a leading manufacturer specializing in the design and production of loading arms and petrochemical equipment. With over 120 sets of advanced manufacturing and testing equipment, we hold numerous patents and certifications including ISO9001, ISO14001, and ISO45001.

Factory Overview
📸

Detailed Gallery & Certifications

Detail 1
Detail 2
Certifications

Frequently Asked Questions

What is your production lead time?
Generally, delivery can be made within 30-60 days depending on the specific product.
What payment terms do you offer?
We typically offer a 30% deposit and 70% before shipment, negotiable based on order details.
Can you apply our own brand to the products?
Yes, we provide OEM services and can apply your brand to the equipment.
How do you ensure product quality?
We maintain a strict quality control process with inspections at every production stage.
Do you provide documentation and certifications?
Yes, we provide material certificates, inspection reports, and compliance documentation.
How long is the warranty period?
The warranty is 12 months from commissioning or 18 months from delivery, whichever comes first.

Related Products