The Top Loading Arm with Two Arms is a specialized device designed for efficient and safe liquid transfer from the top of road or rail tankers.
| ITEM | SPECIFICATION |
|---|---|
| Nominal Diameter | DN25 ~ DN200 (1"-8") |
| Design Pressure | -0.06MPa ~ 5.0MPa |
| Design Temp. | -196ºC ~ 250ºC |
| Pipeline Material | CS, SS, Aluminum Alloy, PTFE Lined, etc. |
| Operating Method | Manual, Pneumatic or Hydraulic |
| Balance Mode | Spring cylinder or counterweight |
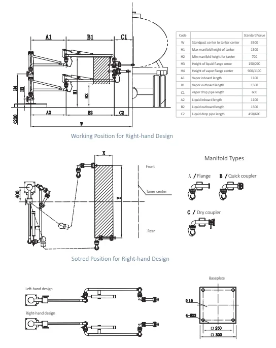
Top Loading Arm Envelope
Bottom Loading Arm Envelope
Oil and Gas: Transfer of crude oil, refined products, and LNG at refineries and terminals.
Chemical Industry: Handling corrosive, hazardous, or high-viscosity chemicals with compatible materials.
Food & Beverage: Hygienic transfer of milk, edible oils, syrups, and juices.
Pharmaceuticals: Safe handling of pharmaceutical-grade liquids and solvents.
Water Treatment: Transfer of chlorine, sulfuric acid, and other treatment agents.
As a leading manufacturer for loading arms and petrochemical equipment, we specialize in the design, manufacturing, and supply of land loading arms, marine loading arms, floating suction units, loading skids, gangways, and more. With a factory area of more than 12 acres and advanced manufacturing equipment, we hold numerous patents and international certifications including ISO9001, ISO14001, and ISO45001.
Our products are exported globally to regions including Europe, Southeast Asia, and Africa. We persist in supplying cost-effective systematic solutions through continuous R&D and innovation.


